286 W Clay Ave

Roselle Park Boro, NJ 07204


 

Price: $749,000

GSMLS:  4001696
Type: Multi-Family
Style: 2-Two Story
Total Units: 3
Beds: 3
Baths: 4 Full
Garage: 2-Car
Year Built: Unknown
Acres: 0.11
Property Tax: $16,614
Description
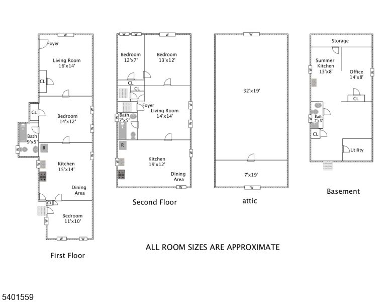
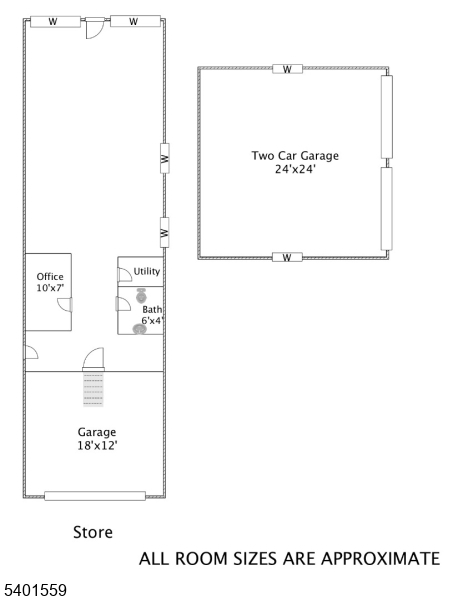
Unique Mixed-use Opportunity With Exceptional Potential In Prime Location - There Are 2 Properties On One Lot. A Commercial Building On The Corner Of W Clay And Columbus With A 2 Car Garage Behind It And The Red 2 Family Right Next To It!!!!!!a Truly Rare Offering On A 50' X 100' Lot, This Property Presents An Outstanding Opportunity For Investors, Owner-occupants, Or Developers Seeking Flexibility And Long-term Value. The Site Features A Single-story Commercial Building Totaling Approximately 1,200 Square Feet, Along With A Two-family Residential Home And A Detached Two-car Garage All On One Parcel.the First-floor Unit Offers Two Bedrooms, Living Room, Kitchen, Full Bath, And A Fully Finished Basement With Kitchenette And Full Bath. The Second-floor Unit Includes One Bedroom Plus Office, Large Living Room, Kitchen, And Walk-up Attic For Storage.property Is In Need Of Updating, Offering Excellent Value-add Potential For Investors Or Owner-users. Located Less Than One Mile From The Train Station And Close To Major Highways And Transportation. Do Not Miss!!! Very Long Tenants In Multi-family - Commercial Property Is Being Sold Vacant
General Info
Style:
2-Two Story
SqFt Building:
n/a
Total Rooms:
10
Basement:
Yes - Finished, Full
Interior:
Carbon Monoxide Detector, Carpeting, Fire Extinguisher, See Remarks, Smoke Detector
Roof:
Asphalt Shingle
Exterior:
Aluminum Siding, Brick
Lot Size:
50X100
Lot Desc:
Level Lot
Parking
Garage Capacity:
2-Car
Description:
Detached Garage
Parking:
2 Car Width
Spaces Available:
6
Unit 1
Bedrooms:
2
Bathrooms:
2
Total Rooms:
6
Room Description:
Bedrooms, Eat-In Kitchen, Kitchen, Living Room, Rec Room, See Remarks
Levels:
2
Square Foot:
n/a
Fireplaces:
n/a
Appliances:
CarbMDet,CookGas,RgOvGas,SeeRem,SmokeDet
Utilities:
Owner Pays Gas, Owner Pays Heat, Owner Pays Water
Handicap:
No
Unit 2
Bedrooms:
1
Bathrooms:
1
Total Rooms:
4
Room Description:
Attic, Bedrooms, Den, Eat-In Kitchen, Living Room, See Remarks
Levels:
2
Square Foot:
n/a
Fireplaces:
n/a
Appliances:
CarbMDet,CookGas,RgOvGas,SeeRem,SmokeDet
Utilities:
Owner Pays Gas, Owner Pays Heat, Owner Pays Water
Handicap:
No
Unit 3
Bedrooms:
n/a
Bathrooms:
1
Total Rooms:
2
Room Description:
See Remarks
Levels:
1
Square Foot:
n/a
Fireplaces:
n/a
Appliances:
Carbon Monoxide Detector, See Remarks, Smoke Detector
Utilities:
Owner Pays Gas, Owner Pays Heat, Owner Pays Water
Handicap:
No
Unit 4
Bedrooms:
n/a
Bathrooms:
n/a
Total Rooms:
n/a
Room Description:
n/a
Levels:
n/a
Square Foot:
n/a
Fireplaces:
n/a
Appliances:
n/a
Utilities:
n/a
Handicap:
n/a
Utilities
Heating:
2 Units, See Remarks
Heating Fuel:
Gas-Natural
Cooling:
Wall A/C Unit(s)
Water Heater:
n/a
Water:
Public Water
Sewer:
Public Sewer
Utilities:
Electric, Gas-Natural
Services:
n/a
School Information
Elementary:
n/a
Middle:
Roselle Pa
High School:
Roselle Pa
Community Information
County:
Union
Town:
Roselle Park Boro
Neighborhood:
n/a
Financial Considerations
List Price:
$749,000
Tax Amount:
$16,614
Land Assessment:
$119,000
Build. Assessment:
$256,800
Total Assessment:
$375,800
Tax Rate:
4.42
Tax Year:
2024
Listing Information
MLS ID:
4001696
List Date:
12-15-2025
Days On Market:
10
Listing Broker:
MICHELLE DAVID REALTY GROUP
Listing Agent:
Michelle David
 

Request More Information

Shawn and Diane Fox
RE/MAX American Dream
3108 Route 10 West
Denville, NJ 07834
Call: (973) 277-7853
Web: TownsquareVillageLiving.com


RE/MAX

Town & Valley II

211 Route 10 East
Succasunna, NJ 07876
Office: (973) 598-1008
Fax: (973) 598-1908


Shawn and Diane Fox